四川莱奥科技有限公司
  一站式解决工业厂房采光、通风、排烟难题

设为首页 | 收藏本站
产品详情
分享到:

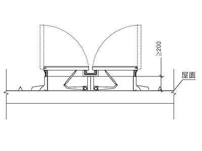
一字型采光排烟天窗

产品详情

外观为平行,高度低有效减少风压阻力,天窗顶部为采光板,有效增加室内亮度,开启电机设计成24V安全电压,可连接消防联动控制系统及风、雨、烟感应器,实现全自动控制。适用于生产车间、大厅、体育场等。

地址:中国(四川)自由贸易试验成都高新区天府三街218号
热线:028-86666377
传真:028-87915159
登录
登录
留言
回到顶部